Summit

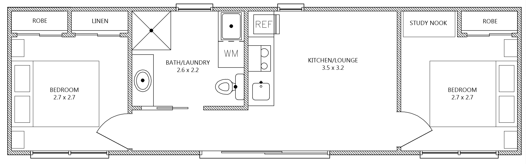
This versatile two-bedroom modular layout offers a fully self-contained living solution ideal for dual occupancy, rental accommodation, extended family living or shared guest stays. Each bedroom features space for a comfortable queen bed, dedicated 1300mm robe, and space for personal items, creating two private and equally functional sleeping zones. The central bathroom includes a 900mm shower, toilet and vanity, while the adjoining laundry nook accommodates a washing machine, linen storage and room for household essentials.

Completing the layout is a practical kitchenette with a sink, refrigerator space and overhead storage, making day-to-day living simple and efficient. Thoughtfully arranged to maximise comfort and privacy, this design delivers a highly flexible modular home with everything needed for independent living in a compact, modern footprint.

Request Price Guide
Previous
Previous

Duo - 2 Bedroom + Bathroom + Living

Next
Next

Junction - 2 Bedroom + Ensuite + Kitchen + Living + Garage